Localisation :
MORBIHAN (56)
Maître d'Ouvrage :
Privé
Type d'opération :
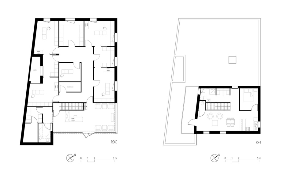
Création d'un cabinet dentaire.
Année de réalisation :
études: 2022
Superficie :
265 m²
MORBIHAN (56)
Maître d'Ouvrage :
Privé
Type d'opération :
Création d'un cabinet dentaire.
Année de réalisation :
études: 2022
Superficie :
265 m²


